Basics
- Date added: Added 4 weeks ago
- Category: Mayenne
- Bedrooms: 5
Description
-
Description:
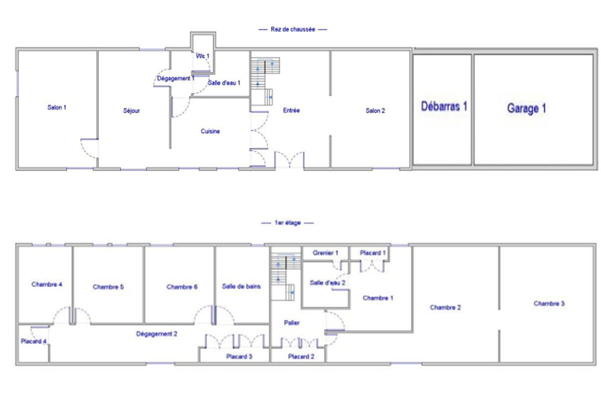
AHIN-AS-5028 • La Dorée • Mayenne • 53190 • 4-6 Bedroomed House • 227 m2 Habitable Space, Outbuildings, Garage, Garden, Well, on 3897m2 terrain • 248 000€ +Notaire's Fees
An extensive village family home backing onto country-side with several outbuildings and a paddock.
This large family home offers beautiful and well thought out living space within. A high level of investment has ensured a very comfortable and energy efficient way of life.
So much to discover !
The ensemble includes a beautiful, large, stone built barn (currently used as a huge workshop) which, (with the correct permissions, it could be developed).
All sitting on almost 4,000m2, almost an acre. The paddock is approximately 1300m2 currently kept to grass and is bordered by another useful building used as a very large wood-store but which could house animals.
There is an integral garage, a separate garage, greenhouse and vegetable garden and closer to the main property we find a working well.
-Main entrance hall with wood-burning stove and sitting room off
-Family kitchen, fitted units and an island
-Separate wc, laundry room with shower, door to storage rooms and rear gardens
-Good sized dining room
-A further sitting room with wood burning stove
-Stairs to first floor from entrance hall leading to :
-4 good sized bedrooms (1 with private shower room and wc)
-Family bathroom with bath, shower over, wc, basin
-2 more rooms, 1 currently used for storage and 1 a hobby room
-All double glazed, radiators through-out, main heating via air source heat pump. DPE C
-Mains drainage (No septic tank required)
Contact me directly : alison.s@agencenewton.com for further information or to book a viewing. Video coming soon.
(5.98 % fees incl. VAT at the buyer's expense.)
General
Commune LA DOREE
Postal Code 53190
Department Mayenne (53)
Type of property House
Liveable Space 227 m²
Land size 3897 m²
Interior arrangement
Number of Rooms 10
Bungalow No
Number of floors 1
Bedrooms 5
Structural
Financial aspects
Price excluding fees
234000 EUR
Price including Agency Fees
248000.00 EUR
Fees (%)
5.98 %
Others
Surveys & Reports
Energy diagnosis
Oui
Primary energy consumption C
Primary energy consumption value 173 kWh/m2 par an
Greenhouse gas A
Greenhouse gas value 6 Kg CO2/m2/an
Min Energy Cost
3340 EUR
Max Energy Cost
4520 EUR
Vaste maison familiale de village, en bordure de campagne, avec plusieurs dépendances et un pré.
Cette grande maison familiale offre des espaces de vie intérieurs magnifiques et bien conçus. Un investissement important a permis d'assurer un confort optimal et une consommation d'énergie réduite.
A découvrir absolument !
L'ensemble comprend une magnifique et grande grange en pierre (actuellement utilisée comme vaste atelier) qui, avec les autorisations nécessaires, pourrait être aménagée. Le tout s'étend sur près de 4000 m², soit presque un acre. Le pré d'environ 1300 m² est actuellement enherbé et bordé par un autre bâtiment, utilisé comme très grand bûcher mais pouvant également accueillir des animaux. On trouve également un garage intégré, un garage séparé, une serre et un potager. A proximité de la maison principale se trouve un puits en état de marche.
- Hall d'entrée principal avec poêle à bois et salon attenant
- Cuisine familiale équipée avec îlot central
- WC séparés, buanderie avec douche, accès aux pièces de rangement et au jardin
- Salle à manger spacieuse
- Deuxième salon avec poêle à bois
- Escalier menant à l'étage depuis le hall d'entrée :
- 4 chambres spacieuses (dont une avec salle d'eau privative et WC)
- Salle de bains familiale avec baignoire, douche, WC et lavabo
- 2 pièces supplémentaires, dont une actuellement utilisée comme débarras et l'autre comme atelier
- Double vitrage, radiateurs, chauffage central par pompe à chaleur air-eau. Classe énergétique C
- Tout-à-l'égout (fosse septique non requise)
(5.98 % honoraires TTC à la charge de l'acquéreur.)
=
General
Commune LA DOREE
Code postal 53190
Département Mayenne (53)
Type de bien maison
Surface habitable 227 m²
Surface terrain 3897 m²
Intérieur
Nombre pièces 10
Plain-pied Non
Nombre étages 1
Chambres 5
Extérieur
Aspects financiers
Prix hors honoraires 234000 EUR
Prix honoraires inclus 248000.00 EUR
Honoraires (en %) 5.98 %
Autres
Diagnostics
Soumis à l'affichage du DPE
Oui
Consommation énergie primaire C
Valeur consommation énergie primaire 173 kWh/m2 par an
Gaz Effet de Serre A
Valeur Gaz Effet de serre 6 Kg CO2/m2/an
Estimation des Couts Energie Min 3340 EUR
Estimation des Couts Energie Max 4520 EUR
Location
- Neighborhoods: La Dorée

