Description
-
Description:
AHIN-AS-4734 • UNDER OFFER • Pontorson • Manche • Normandy • 50170 • 2 Bedroomed Semi-Detached Townhouse near Mont Saint Michel • 129,000€ + Notaire’s Fees • "Very Tidy!"
Super 2-bedroom town house in Pontorson . 3 minute walk to the Pontorson Mont Saint Michel train station which links to Rennes, Paris and beyond. No need for a car as shops, restaurants, bars are just a gentle stroll from the doorstep.
- Modern clean décor through-out
- Fully fitted kitchen with island direct access to the courtyard garden
- Living room with direct access to the courtyard garden
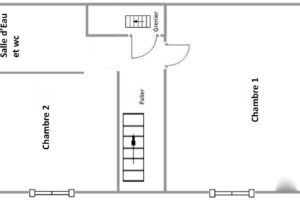
- Ground floor wc
- 2 light and airy bedrooms
- First floor shower room with wc
- Further potential to create a bedroom in the attic space
- Fully double glazed
- Courtyard garden
- Parking on the street
- Mains drainage
- DPE D
Price : 129,000 euros agency fees included
Commune PONTORSON • Postal Code 50170 • Department Manche (50)
Type of property House
Liveable Space 79 m²
Land size 100 m²
Interior arrangement
Number of Rooms 4
Number of floors1
Bedrooms 2
Structural
Financial aspects
Price excluding fees 120600 EUR
Price including Agency Fees 129000.00 EUR
Fees (%)6.97 %
Energy diagnosis: Oui
Primary energy consumption D
Primary energy consumption value220 kWh/m2 par an
Greenhouse gas B
Greenhouse gas value7 Kg CO2/m2/an
Min Energy Cost773 EUR
Max Energy Cost773 EUR
Cost Reference Year01/01/2014
Location
- Neighborhoods: Le Mont Saint Michel, Pleine Fougeres, Pontorson

